2025.10.29
言わば電源のコンシェルジュ
私たちは言わば電源のコンシェルジュ、
ユーザーのあらゆる要望に応えることをモットーとしており、決してNOとは言わない
需要に基づき各メーカーで生産される汎用品、法令や規格に基づき、
顧客のニーズや設置条件、環境に則した受注生産品、
すでに生産終了、一体どこに連絡すれば代替品は手に入るのか
そしてこんなことが出来ないか、こういう時にどうすればよいか!?
様々な設備を取り扱う中で、ユーザーは様々な場面に出くわします。
私たちの専門とする電源において、珍しい対応事例を紹介します。
持ち運びを想定した移動式電源装置
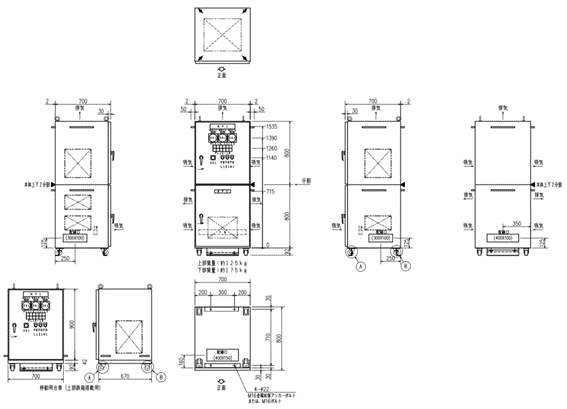
ユーザーの要望仕様は「持ち運びを想定した移動式電源装置」で、回路条件は下記の内容でした。
回路条件
自動電圧調整装置付サイリスタ整流器
定格入力 交流 三相200V 60Hz
定格出力 直流105~125V 50A
特別な要望事項
・移動を想定する為、足元はキャスター付き(全て自在式・ストッパ付)
・人力での運搬を要望(持ち手を付ける)
上記の要望事項を基に、豊富な実績とノウハウを持つ電源メーカーへ相談・協議し、
ユーザーの出来るだけ要望に沿った設計を行った。ただ出来ないこともあった。
特別な要望事項への対応
・移動を想定する為、足元はキャスター付き(全て自在式・ストッパ付)
⇒要望通り4点すべてに自在式・ストッパ付のキャスター付きとした
・人力での運搬を要望(持ち手を付ける)
⇒1.両側面、背面に横引きしやすいよう持ち手取付
2.上下分割構造 上部約125㎏、下部約175㎏(1面構成だと約300㎏)
3.上部部分のみを横引きしやすいよう別途移動用台車を用意
4.筐体は堅ろうな鋼板製であるものの、軽量化を図る為、側板はアルミ製に

しかしながら必要な電源回路を構成する上で欠かせない
重量物の絶縁トランス、電源装置を構成する主要な電気的な部品を
筐体に組み込もうとすると、どうしても人力で持ち上げられる重量では抑えられなかった。
運ぶことだけを優先し、品質レベルを下げれば、
持ち運び可能なものは出来たかもしれない。
しかし大前提として有事の際に良質で安定した電源供給を行わなければならない。
あらゆる要望に応える為、最善を尽くしますが、守らなければならない品質がそこにはありました。
今後も電源のコンシェルジュとして、安心な電源設備をあなたのもとへ
お問い合わせ
省エネ、防災、減災など安心の電源設備に関するお困りごと、課題解決はお気軽にご相談ください。
安⼼な電源設備をあなたのもとへに関する資料はこちら関連ページ
安⼼な電源設備をあなたのもとへ
産業⽤蓄電池や発電システムなど安⼼の電源設備を、設計・施⼯から保守まで⼀貫して提供します
この記事はTECS事業部が執筆しました。
関連記事
おすすめ記事
GSユアサの工場で、お客様自身による立会検査が可能です
作業員全員、蓄電池設備整備資格者!
福井の皆様へ 新たな電源ラインナップを越前がにと共に
人気記事
蓄電池設備の消防法令改正を解説します!
一次電池と二次電池の違いについて
触媒栓って何?いつ交換するの?
蓄電池銘板のセルと個数の関係について解説(注意!)
直流電源装置って何に使うの??
直流電源装置の整流器容量選定について
蓄電池設備には標識設置基準があることをご存じですか?
非常用発電機設置には関係官公庁への届け出が必要です!
バッテリー液が流出!?もしもの時に備えて中和講習!