2025.11.12
廃番商品もフォローします
今回は以前弊社で販売、施工し、
現在廃番となっている商品のアフターフォローについてのお話になります。
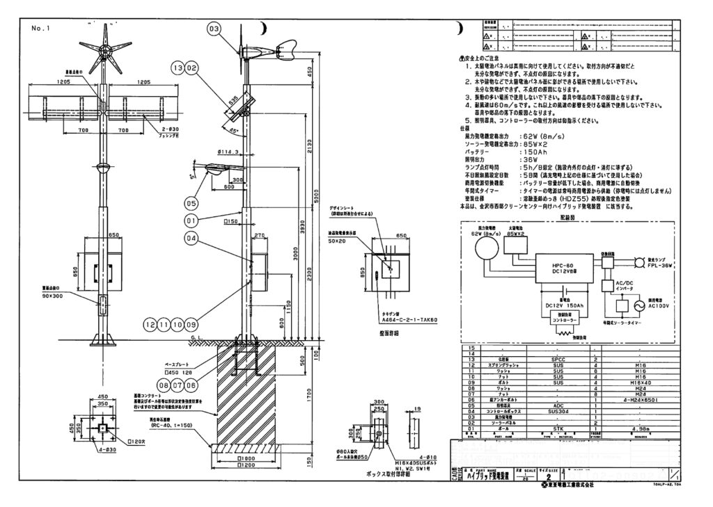
金沢市某所の施設に以前弊社開発部門で設計、
製作していましたハイブリッド発電装置があり、お客様より不具合の連絡を頂き訪問しました。
この商品は、風車と太陽光パネルの組み合わせで発電し、
内蔵のディープサイクルバッテリーに蓄電、夜間に照明が点灯するシステムです。

今回ご連絡頂いた不具合内容は風車からのゴンゴン?という異音がするとの事。
早速現地にお伺いして、各種測定機器と仮設のバッテリーで調査を開始します。

この施設様には本装置が2基設置していますが、ご連絡頂いた1基目は
強風になると風車を保護するため設定以上回転しないよう
ブレーキがかかる仕様になっている為、
そのブレーキが断続的に作動した音で異常ではありませんでした。
ですが内蔵のバッテリーが期待寿命を大きく過ぎていた為、
蓄電能力がなくなり、本来の機能を果たさなくなる可能性が
高い事を現地でご説明しました。
2基目に関してはバッテリーの蓄電能力が完全に失われており、
風車のブレーキが効かず高速で回転し、危険な状態であるとともに、
照明の蛍光灯も切れており夜間は不点となっていた事を確認しました。
今回は2基共にバッテリーの交換と、照明不点の2基目に関しては
灯具を蛍光灯からLED灯具に変更のご提案をさせて頂く事となりました。
又、現時点では問題無く作動していた風車に関しては、
メーカーが生産終了しているため修繕は不可であることもご説明しました。
石川県内に同様の設備を多数納品させて頂いている為、
今後同様のお問合せを頂くことが予想されます。
今回のように廃番になっている商品に関してもできる限り
お客様のニーズに沿えるよう各種提案をしていくことで
末永くご使用いただけるよう活動します。
因みにこちらの施設ではGSユアサ製のパワーコンディショナーも
3台納入させていただいており同様にフォローさせて頂きます。
お問い合わせ
省エネ、防災、減災など安心の電源設備に関するお困りごと、課題解決はお気軽にご相談ください。
安⼼な電源設備をあなたのもとへに関する資料はこちら関連ページ
安⼼な電源設備をあなたのもとへ
産業⽤蓄電池や発電システムなど安⼼の電源設備を、設計・施⼯から保守まで⼀貫して提供します
この記事はTECS事業部が執筆しました。
関連記事
おすすめ記事
GSユアサの工場で、お客様自身による立会検査が可能です
作業員全員、蓄電池設備整備資格者!
福井の皆様へ 新たな電源ラインナップを越前がにと共に
人気記事
蓄電池設備の消防法令改正を解説します!
一次電池と二次電池の違いについて
触媒栓って何?いつ交換するの?
蓄電池銘板のセルと個数の関係について解説(注意!)
直流電源装置って何に使うの??
直流電源装置の整流器容量選定について
蓄電池設備には標識設置基準があることをご存じですか?
非常用発電機設置には関係官公庁への届け出が必要です!
バッテリー液が流出!?もしもの時に備えて中和講習!